Chapter 1. The Power Onyx and Onyx Rackmount
Graphics Workstation

The Onyx rackmount workstation (see Figure 1-1) is a high-performance computer graphics system installed in a configurable rack-mounted enclosure. Hereinafter, all Onyx systems are referred to generically as the Onyx system, unless otherwise specified. This guide contains detailed hardware and software information that is required for system operation.

Figure 1-1. Onyx Rackmount Graphics Workstation

Figure 1-1 Onyx Rackmount Graphics Workstation

Features

Following is a list of the Onyx rackmount graphics workstation's standard features:

  • The POWERpath-2 Onyx board set, which

    • supports a maximum of 24 R4400 or R10000 processors (6 IP19 or IP25 CPU boards), or up to 12 R8000 (6 IP21 CPU boards)


      Note: You may not mix different types of CPU boards in the same chassis.


    • can be configured with up to eight MC3 interleaved memory boards, each having a maximum of two gigabytes (GB) of memory

    • can be configured with a maximum of six POWERChannel 2 (IO4) interface boards, providing multiple graphics, VMEbus, and peripheral interfaces

    • utilizes a 256-bit system data bus (Ebus)

    • utilizes a 40-bit system address bus (Ibus)

    • supports a maximum of three InfiniteReality[tm], or RealityEngine2[tm] graphics subsystems, or a single VTX[tm] graphics subsystem


      Note: InfiniteReality graphics systems are not supported in POWER Onyx (R8000-based) systems.


  • The InfiniteReality graphics subsystem, which includes

    • a Geometry Engine® (GE12) board

    • a DG4 Display Generator board

    • up to four RM6 Raster Memory boards per graphics subsystem

    • a 21-inch color monitor

  • The RealityEngine2 graphics subsystem, which includes

    • a Geometry Engine (GE10) board

    • a DG2 Display Generator board

    • up to four RM4 or RM5 Raster Memory boards per graphics subsystem

    • a 21-inch color monitor

  • The VTX graphics subsystem, which includes

    • a Geometry Engine (GE10) board

    • one RM4 Raster Memory board

    • a DG2 Display Generator board

    • a 21-inch color monitor

  • Two separate cardcages provide eleven Ebus slots, four VMEbus slots, six graphics bus slots, and three Power board slots.

  • SCSI drive enclosure (SCSIBox 2), supporting eight half-height SCSI devices or four full-height SCSI devices, that has dual configurable SCSI channels, compatible with both 8- and 16-bit SCSI devices.

  • Standalone System Controller to monitor system status and to record error information in the event of a shutdown.

  • Microprocessor-controlled cooling system for quieter, more efficient operation.

  • Modular power supplies (POWERmodules) and power boards.

Following is a list of available options:

  • third cardcage with 12 graphics bus slots and 6 VMEbus slots

  • third cardcage with 20 VMEbus slots

  • additional I/O, VMEbus, and graphics interfaces

  • second SCSIBox 2 (identical to the standard enclosure)

  • memory upgrades using 16 MB and 64 MB SIMMs

  • CPU upgrades using additional microprocessor boards (IP21 CPU upgrades are not available with InfiniteReality systems)

  • additional POWERmodules and power boards

Operational Overview

The Onyx rackmount graphics workstation combines the power of the POWERpath-2 system board set with either the InfiniteReality, RealityEngine2, or VTX graphics subsystems in a chassis designed for maximum expansion.


Note: You may not combine different types of graphics subsystems within the same rackmount Onyx workstation.

A unique backplane design with board connectors on both sides (referred to as a midplane) allows the system chassis to house twice the number of boards that can be supported by a conventional chassis of the same size.

The modular power supplies and distribution system ensure that the system chassis can be easily configured to meet the increasing power requirements that accompany system expansion. The internal SCSIBox 2 drive enclosures and multiple interfaces for external drives provide additional data storage resources.

In its maximum configuration, the Onyx workstation can combine 42 circuit boards and 16 disk or tape drives in a single enclosure. Because of the complexity that accompanies the large number of possible system configurations, the basic version of the system is described first, followed by brief descriptions of the available options.

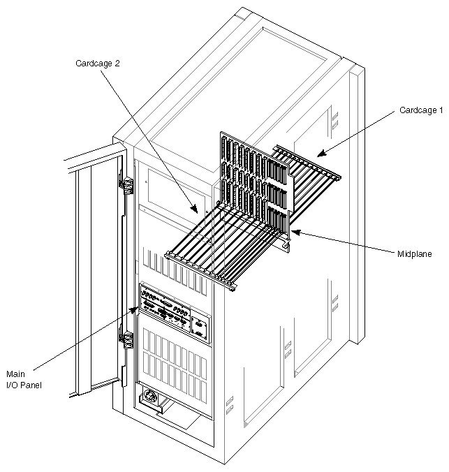
All rack-mounted graphics systems are shipped with a standard set of POWERpath-2 system boards, a graphics board set(s), and a drive enclosure that supports eight half-height or four full-height SCSI devices. Each of these system components is described in the following sections. Figure 1-2 is a functional block diagram of a basic Onyx rackmount graphics workstation. Figure 1-3 illustrates the primary components of the system chassis.

Figure 1-2. Onyx Rackmount Graphics Workstation Functional Block Diagram

Figure 1-2 Onyx Rackmount Graphics Workstation Functional Block Diagram

Figure 1-3. Onyx System Chassis

Figure 1-3 Onyx System Chassis

POWERpath-2 System Board Set

This section provides a brief description of the boards that compose the POWERpath-2 board set.

CPU Boards

The CPU board is the heart of the POWERpath-2 board set. The Onyx system uses either an IP19 CPU board, the IP21 CPU board, or the IP25 CPU board.

The IP19 is a multiprocessor CPU that is configured with either two or four processors. The IP19 board logic is "sliced" so that each processor has its own dedicated supporting logic. This arrangement allows each processor to run independently of the others. The only board logic shared by the processors is the bus interface. A set of five ASICs (four data, one address) provides the interface between the CPUs and the system data and address buses.

The IP21 CPU is also a multiprocessor CPU board and comes configured with either one or two processors. The IP21 delivers more processing power and speed than the IP19 board, primarily by providing a dedicated floating point unit (FPU) chip and additional support hardware. This frees up the CPU to perform other required tasks and eliminates much of the wait states. The IP21 also implements dual-ported cache, which enables two data accesses at the same time, significantly improving processing speed. In its maximum configuration, the Power Onyx system supports up to 12 processors on 6 CPU boards. Note that InfiniteReality graphics are not supported in IP21 CPU-based systems.

The IP25 CPU board uses one, two, or four R10000 microprocessors. Each 3.3V R10000 uses a customized 2-way interleaved data cache, and has dedicated second-level cache support. A high-performance bus interface links the CPU directly with supporting SRAM.

MC3 Memory Board

The MC3 interleaved memory board has 32 SIMM slots and can be populated with a combination of 16 MB and/or 64 MB SIMMs. In its maximum configuration, each board can supply 2 GB of random-access memory. The memory board supports up to eight-way interleaving, providing faster access times and allowing faulty components to be configured out of the memory map.

POWERChannel 2 Interface Board

The POWERChannel 2 interface board (also referred to as the IO4) provides the Onyx system with all of the basic serial ports and interfaces needed for system operation. These interfaces include the video port, the keyboard and mouse interfaces, the SCSI bus interfaces, the Flat Cable Interface (FCI) to the graphics board set, the AUI Ethernet interface, three RS-232 serial ports, and an RS-422 serial port.

The IO4 board also provides the "base" to which a variety of interface (mezzanine) boards can be mounted.


Note: The VMEbus Channel Adapter Module (VCAM) is the only mezzanine board installed as standard equipment on all systems. All of the other mezzanine boards are optional.

The IO4 device controllers transfer addresses and data between the various I/O interfaces and the Ebus over the 64-bit Interface bus (Ibus). The Ibus connects to the Ebus through the IA and ID ASICs, forming an asynchronous boundary that provides the Ibus with a bandwidth of 320 MB per second.

The IA and ID ASICs act as bus adapters that connect the Ibus to the much faster Ebus. In addition to making the necessary conversions back and forth between the two buses, the IA and ID ASICs perform virtual address mapping for DMA operations and maintain cache coherency between the Ebus and the I/O subsystem.

The IO4 contains two flat cable interfaces (FCIs) that are proprietary to Silicon Graphics®. FCIs are synchronous, point-to-point interfaces that allow communication between devices. The FCIs are used to connect the VME64 bus or FDDI adapters to the IO4 board. The two FCIs on the first (or only) IO4 board in the system are connected to the VME Channel Adapter Module (VCAM) board.


Note: FCIs can operate at up to 200 MB per second for VMEbus adapters.

The VCAM provides the interface between the VMEbus and the Ebus. It is mounted on the first IO4 board, and the pair are installed in the system midplane as a unit. The IO4 occupies slot 15 on the Ebus, and the VCAM occupies the first VMEbus slot, located to the immediate right.

The VMEbus interface supports all protocols defined in Revision C of the VME Specification, plus the A64 and D64 modes defined in Revision D. The D64 mode allows DMA bandwidths of up to 60 MB per second. The VMEbus interface can operate as either a master or a slave. It supports DMA-to-memory transfers on the Ebus, as well as programmed I/O operations from the Ebus to addresses on the VMEbus.

The IO4 board contains two 16-bit SCSI-3 disk controllers. Each controller can operate with a bandwidth of up to 20 MB per second and can be configured for either single-ended or differential SCSI channels.

The IO4's Ethernet interface operates at the standard Ethernet rate of 10 Mb per second and supports AUI (15-pin) physical connections. The controller is intelligent and requires no direct CPU involvement when packets are transmitted or received.

The IO4 contains a DMA-driven parallel port capable of operating printers or performing high-speed data transfer to or from external equipment at rates up to 300 KB per second.

The IO4 board also supports three RS-232 and one RS-422 serial port, all of which are capable of asynchronous operation at rates up to 19.2 Kbaud. The RS-422 port may be operated at 38.4 Kbaud, provided the RS-232 ports are not all in use.

To accommodate extra disk controllers, the optional SCSI mezzanine board (S mezz) contains three 16-bit SCSI-3 controllers. Two of the controllers are differential only; the third is configurable as single-ended or differential. These controllers are identical to those used on the main IO4 board. S mezz boards can be plugged into either or both of the mezzanine card slots on an IO4 board, allowing up to eight SCSI-2 controllers per IO4 board.

The Graphics Board Sets

The Onyx rackmount graphics workstation is available with up to three InfiniteReality or RealityEngine2 graphics subsystems or a single VTX graphics subsystem.

InfiniteReality is the most powerful graphics subsystem available, and is made up of a GE12 Geometry Engine board, a DG4 Display Graphics board, and up to four RM6 Raster Manager boards.


Note: When using multiple RM6s, you may not mix 16 MB and 64 MB RMs in the same pipe.

The RealityEngine2 (RE2) and VTX graphics subsystems each comprise three board types: the Geometry Engine (GE10), the Display Generator (DG2), and the Raster Memory (RM4). RE2 systems may also use RM5 raster boards.

InfiniteReality Graphics Functional Description

The GE12 Board

The GE12 board uses high-performance GE11 geometry engines. The GE12's host interface processor (HIP) ASIC interfaces with the host system through a Flat Cable Interface (FCI) on the IO4 board. The FCI is a 64-bit wide bus whose purpose is to provide an interface on the IO4 board between the graphics subsystems and the Ibus.

The RM6 Board

Communication between the Raster Memory (RM6) and the DG4 board is over the Video Frontplane bus. The readback bus (Rbus) provides a path for pixels flowing from the RM6 frame buffer to the geometry engine distributor (GED). The Video Control bus provides access to the color maps, window display modes, and cursor control modes. The RM6 board scan-converts triangle data from the triangle bus (Tbus) into pixel data. The RM6 then organizes the data into a series of spans (vertical strips of pixels) and transfers it to the frame buffer.

The DG4 Board

Following the transfer to the frame buffer, the RM6 hands off control of the graphics subsystem to the display generator (DG4). The DG4 subsystem receives digital frame buffer pixel data from the RM6 board over the video frontplane. Two display channels per DG4 board are standard. An additional six are optional on the multichannel display generator DG4-8.

Figure 1-4. InfiniteReality Graphics Subsystem Functional Block Diagram

Figure 1-4 InfiniteReality Graphics Subsystem Functional Block Diagram

RE2 and VTX Functional Description

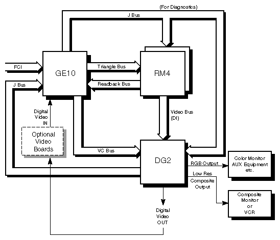
See Figure 1-5 for a functional block diagram of the RealityEngine2 and VTX graphics board sets. Unless otherwise indicated, the following information applies to both the RE2 and VTX versions.

Geometry Engine

The Geometry Engine (GE10) board processes Graphics LibraryTM (GL) commands and data from the system and is the first stage of the graphics pipeline. The VTX GE10 has 6 GE processors. The RE2 GE10 has 12 GE processors, giving it twice the processing capability of the VTX configuration.

Raster Memory (RM4 or RM5) Board

The Raster Memory (RM4) boards scan and convert triangle data from the Triangle bus into pixel data. The pixel data is then organized into a series of spans, or vertical strips of pixels. The graphics subsystems display images by projecting a continuous series of spans onto the screen. The RM transfers the spans to the frame buffer, which is a rectangular array of image memory processors. Following the transfer to the frame buffer, the RM hands off control of the graphics subsystem to the display generator (DG2).

The RE2 board set can have up to four RM4 or RM5 boards per pipeline. The cost-reduced VTX supports one RM4 board. As more RM boards are added, the spans are interleaved, providing higher resolution and higher display quality.

Display Generator Subsystem (DG2)

The Display Generator (DG2) board receives digital frame buffer pixel data from the RM4 board over the video bus. The DG2 then processes the pixel data through digital-to-analog converters (DACs) to generate an analog pixel stream for display.

Figure 1-5. RE2 Graphics Subsystem Functional Block Diagram

Figure 1-5 RE2 Graphics Subsystem Functional Block Diagram

System Midplane and Backplane

The Onyx rackmount system midplane has a combination of POWERpath-2 (Ebus), graphics bus, and 9U VMEbus board connectors. The graphics workstation midplane has ten system bus, five graphics bus, and four VMEbus board slots.

In addition to the midplane, two optional backplanes are available. One provides an additional 6 VMEbus slots and 12 graphics bus slots. The other provides 20 VMEbus slots. See Chapter 2, "Touring the Chassis," for more information and the locations of the midplane and backplanes.

SCSI I/O Devices

SCSI devices are the only data storage devices internally supported by the Onyx system. The standard configuration is a single SCSIBox 2 that houses a maximum of 8 half-height SCSI devices. These devices include 1.2 GB and 2 GB disk drives, 1/4-inch, 4-mm DAT drives, 8-mm tape drives, and CD-ROM players.

All drives must be configured as Front Loading Devices (FLDs) before they can be mounted in the drive enclosure. An FLD is a SCSI storage device mounted on a P8 drive sled. The drive sled adapts the drive's power and signal connectors to the connectors within the SCSIBox 2. Drives configured in this manner require no cabling; receptacles at the rear of the sled assemblies automatically engage the corresponding connectors on the drive box's backplane when the drive is installed. A second, identical drive enclosure is available as an option. Both SCSIBoxes have a pair of independent, configurable SCSI channels.

Though the system supports only SCSI devices internally, other drive types with a VMEbus compatible controller board and IRIX compatible device drivers can be supported remotely.


Note: Non-SCSI devices can be supported but cannot be used as the boot device.

System Controller

The System Controller is a microprocessor with battery-backed memory that manages the system power-up sequence, as well as a portion of the boot process. During normal system operation, the System Controller monitors various system operating parameters such as fan speed, chassis temperature, the system clock, and backplane voltages. If the monitored operating parameters move out of their predetermined ranges, the System Controller can shut down the system. Error messages are stored in a log; therefore, you can retrieve messages in the event of a system shutdown.

A 128-character display is visible through a cutout in the system chassis' upper front door. This display gives you information about system status and detailed error messages in the event of a failure.

Four function buttons allow you to move through the menus and displays and to execute the controller functions. See Chapter 5, "Having Trouble?" for a detailed explanation of the System Controller features.

Operating Considerations

This section covers the basic requirements for physical location to ensure proper chassis operation.

The Onyx rackmount chassis is designed to be housed in a computer room that meets the following qualifications:

  • The chassis should have a minimum air clearance of 5 inches around all sides (except the top and bottom).

  • The top of the chassis should have a minimum air clearance of 3 feet. Do not place anything on top of the chassis that can restrict the exit airflow.

  • The chassis should be kept in a clean, dust-free location to reduce maintenance problems.

  • The power provided for the system and any attached peripherals should be rated for computer operation.

  • The chassis should be protected from harsh environments that produce excessive vibration, heat, or other harmful conditions.

  • The access doors should have sufficient clearance to swing completely open.

Additional specifications are provided in Appendix A, "Hardware Specifications."

Consult the CHALLENGE/Onyx Site Preparation Guide for the specific guidelines and requirements for your system.

If you have any questions concerning physical location or site preparation, contact your Onyx system support engineer or other authorized Silicon Graphics support organization before your system is installed.