Chapter 8. Site Preparation for SGI 2000-series, Origin Peripherals, and Onyx2 Rack Chassis

The SGI 2000-series and Onyx2 rack chassis is formed of one or more basic units mounted in a custom rack. The SGI 2000-series base module is detailed in Chapter 6, “Site Preparation for SGI 2000-Series and Onyx2 Base Modules and Deskside Systems”, and the Onyx2 graphics insert module (GIM) is detailed in Chapter 7, “Site Preparation for Onyx2 Graphics Insert Modules”.

These basic units may be placed into special SGI 2000-series or Onyx2 racks. Each rack may contain zero, one, or two of the above basic units, and a number of optional expansion modules, such as Origin Vault.

These racks, in turn, may be joined to form multi-rack systems. These systems are highly integrated, and, in effect, form one large computer system.

Many of these combinations use CrayLink, a custom, high-performance interconnection fabric designed specifically for this purpose.

In addition, Origin200 servers and Origin Vault peripheral chassis may be mounted in a very similar custom rack, called the Origin Peripherals Rack. The custom rack is detailed in this chapter, and the individual Origin200 and Origin Vault chassis are detailed in Chapter 5, “Site Preparation for Origin200 and Origin Vault”.


Note: In this guide, the term “SGI 2000-series” is used to refer to SGI Origin2000, SGI 2100, SGI 2200, SGI 2400, and SGI 2800 server systems.


SGI 2000-Series, Origin Peripherals, and Onyx2 Rack System Shipping Crate

Figure 8-1 illustrates and lists the dimensions of the shipping crate used for the SGI 2000-series, Origin Peripherals, and Onyx2 racks.

Figure 8-1. SGI 2000-Series, Origin Peripherals, and Onyx2 Rack Chassis Shipping Crate

SGI 2000-Series, Origin Peripherals, and Onyx2 Rack Chassis Shipping Crate

Selecting a Location for an SGI 2000-Series, Origin Peripherals, or Onyx2 Rack System

SGI 2000-Series, Origin Peripherals, and Onyx2 rack systems are large, heavy units. Serious consideration must be given to choosing an appropriate location. Figure 8-2 shows an SGI 2000-series rack system (the doorway is shown for scale).

Figure 8-2. SGI 2000-Series Rack System (Origin Peripherals and Onyx2 Racks Similar, Not Shown)

SGI 2000-Series Rack System (Origin Peripherals and Onyx2 Racks Similar, Not Shown)

Selecting a Location for a Single SGI 2000-Series, Origin Peripherals, or Onyx2 Rack System

This section details the things which must be considered when selecting a location for an SGI 2000-Series, Origin Peripherals, or Onyx2 rack system.

Clearances for SGI 2000-Series, Origin Peripherals, or Onyx2 Rack Systems

An SGI 2000-Series, Origin Peripherals or Onyx2 rack system requires enough space for the front doors to open, for the cable cover to swing to the side of the chassis, and for base modules to be lifted into place and mounted in the rack. It is also important that there be room to access the rear of the system, since most of the cables are routed to the back of the chassis. See Figure 8-3 for details.

In order to install and remove base modules, attach cables, and so on, there should be at least three feet of space at the front and rear of the system, or it should be possible to move the system to make space.

Figure 8-3. SGI 2000-Series, Origin Peripherals, and Onyx2 Rack Chassis Recommended Clearances

SGI 2000-Series, Origin Peripherals, and Onyx2 Rack Chassis Recommended Clearances

Floor Loading for SGI 2000-Series, Origin Peripherals, and Onyx2 Rack Systems

Ensure that the floor-load rating of the intended site meets the requirements for the system in question. Floor loadings for SGI 2000-Series, Origin Peripherals, and Onyx2 rack systems are listed in Table 8-1 (on Table 8-1 ), Table 8-3 (on Table 8-3 ), and Table 8-5 (on Table 8-5 ).


Note: SGI 2000-series, Origin Peripherals, and Onyx2 rack systems are very heavy, and some sites do not have a floor-load rating capable of handling them.

For installations on raised floors, check that the construction can properly support the distribution of the weight. SGI 2000-series, Origin Peripherals, and Onyx2 rack systems use four casters or four stabilizing levelers that distribute the weight load to the site floor. See Figure 8-4 for the caster and leveler locations. If a floor has been modified, such as by cutting new access panels in computer-floor tiles, determine if additional reinforcement is required.

Figure 8-4. SGI 2000-Series Origin2000, Origin Peripherals, and Onyx2 Rack Chassis Caster and Leveler Locations

SGI 2000-Series Origin2000, Origin Peripherals, and Onyx2 Rack Chassis Caster and Leveler Locations

Airflow for SGI 2000-Series, Origin Peripherals, and Onyx2 Rack Systems

Position the chassis so that it receives proper air circulation. The airflow in the rack systems is in from the front and top, and out the back, as shown in Figure 8-5 ( SGI 2000-series rack), Figure 8-6 ( Onyx2 rack), and Figure 8-7 (Origin Peripherals rack). An ideal location provides cool air near the chassis air-intake vents and removes warm air from the area of the chassis air outlets.

SGI 2000-series, Origin Peripherals, and Onyx2 systems are designed for use in typical office computing environments: the air temperature should not fluctuate dramatically, air should circulate freely, and the location should be relatively dust free.

In installations with raised floors, it is a good idea to install perforated tiles for additional airflow to the systems. The additional airflow helps to keep systems cool, especially in crowded machine rooms. While perforated tiles are not strictly necessary, cooler equipment is more reliable. The ideal arrangement is to have one perforated tile in front of each rack system, as illustrated in Figure 8-8.

Figure 8-5. SGI 2000-Series Rack-Chassis Airflow (Shown With Two Base Modules and One Origin Vault)

SGI 2000-Series Rack-Chassis Airflow (Shown With Two Base Modules and One Origin Vault)

Figure 8-6. Onyx2 Rack-Chassis Airflow (Shown With One Base Module, One Onyx2 Graphics Insert Module, and One Origin Vault)

Onyx2 Rack-Chassis Airflow (Shown With One Base Module, One Onyx2 Graphics Insert Module, and One Origin Vault)

Figure 8-7. Origin Peripherals Rack-Chassis Airflow (Shown With the Maximum of Nine Origin200 or Origin Vault Units)

Origin Peripherals Rack-Chassis Airflow (Shown With the Maximum of Nine Origin200 or Origin Vault Units)

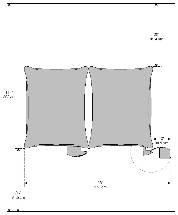
Cable Routing for SGI 2000-Series, Origin Peripherals, and Onyx2 Rack Systems

SGI 2000-series, Origin Peripherals, and Onyx2 rack chassis have an area at the bottom rear of the chassis through which cables may be routed. Figure 8-8 shows the dimensions of the opening and its location relative to the edges of the chassis. In installations with raised floors, it may be desirable to have a hole in the tile below the cutout. Figure 8-8 shows such a hole.

 There are some important precautions, however:

  • Make sure that the edges of any such hole are not sharp or rough, and will not damage the cables.

  • Be careful that the hole in the tile does not reduce the strength of the raised floor.

  • Since the casters are very close to the cutout, ensure that none of the casters fall into the hole, potentially causing the system to tip.

    Figure 8-8. SGI 2000-Series, Origin Peripherals, and Onyx2 Rack-Chassis Cable Opening, Raised-Floor Cutout, and Perforated Tile

    SGI 2000-Series, Origin Peripherals, and Onyx2 Rack-Chassis Cable Opening, Raised-Floor Cutout, and Perforated Tile

Selecting a Location for Multiple SGI 2000-Series, Origin Peripherals, or Onyx2 Rack Systems

In selecting a location for multiple SGI 2000-series, Origin Peripherals, or Onyx2 rack systems, first read the information in “Selecting a Location for a Single SGI 2000-Series, Origin Peripherals, or Onyx2 Rack System”. The information in that section applies to each of the racks in a multi-rack installation.

When multiple SGI 2000-series or Onyx2 rack chassis are installed in the same location, and are connected with CrayLink or XTown cables, there are some additional requirements, which are detailed in this section.

Grounding Multiple SGI 2000-Series or Onyx2 Rack Systems

Multiple SGI 2000-series or Onyx2 rack systems must be connected with special grounding straps supplied by SGI for this purpose. These ensure that the chassis maintain the same chassis ground, a factor that is very important for systems connected with CrayLink or XTown cables.

Consult with your system support engineer ( SSE) for further information about chassis-to-chassis grounding.


Warning: Any difference in ground potential greater than 500 millivolts (0.5 volts) between two chassis connected with CrayLink or XTown cables can cause a range of problems, from poor system operation to severe equipment damage. For further information, see “Chassis Branch Circuit Grounding” in Appendix B.


CrayLink Cabling Multiple SGI 2000-Series or Onyx2 Rack Systems

SGI 2000-series or Onyx2 rack systems connected with CrayLink cables not only must be grounded to each other, they also must be located exactly in the relative positions planned by the cable designers.

Multiple SGI 2000-Series or Onyx2 Rack System Recommended Clearances

Approved multiple rack-chassis configurations are illustrated in Figure 8-9 through Figure 8-11. Other layouts may be acceptable. For information, consult your SSE.


Note: Large multi-rack configurations typically require a meta-router chassis, as shown in Figure 8-11. Consult your SSE for details.

Figure 8-9. Two-Chassis SGI 2000-Series, Origin Peripherals, or Onyx2 Rack Recommended Clearances

Two-Chassis SGI 2000-Series, Origin Peripherals, or Onyx2 Rack Recommended Clearances

Figure 8-10. Four-Chassis SGI 2000-Series, Origin Peripherals, or Onyx2 Rack Recommended Clearances

Four-Chassis SGI 2000-Series, Origin Peripherals, or Onyx2 Rack Recommended Clearances

Figure 8-11. Nine-Chassis SGI 2000-Series or Onyx2 Rack Recommended Clearances (Center Chassis is a Meta-Router)

Nine-Chassis SGI 2000-Series or Onyx2 Rack Recommended Clearances (Center Chassis is a Meta-Router)

SGI 2000-Series, Origin Peripherals, and Onyx2 Rack Chassis Internal Wiring

SGI 2000-series, Onyx2, Origin200, and Origin Vault rack-chassis systems contain a power distribution unit (PDU) which looks much like a common power strip, only larger. The PDUs in racks designed for SGI 2000-series and Onyx2 modules have two 20-amp receptacles and six 15-amp receptacles. The PDUs in racks designed for Origin200 and Origin Vault units have nine 15-amp receptacles. The various types of PDUs are illustrated in “SGI 2000-Series, Origin Peripherals, and Onyx2 Rack Power Distribution Units (PDUs)” in Appendix B.


Warning: Any difference in ground potential greater than 500 millivolts (0.5 volts) between two chassis connected with CrayLink or XTown cables can cause a range of problems, from poor system operation to severe equipment damage. For further information, see “Chassis Branch Circuit Grounding” in Appendix B.



Note: All SGI 2000-series, Onyx2, Origin200, and Origin Vault racks are designed to run on 208 volts (nominal), single-phase power (see “Voltage Requirements” in Chapter 2).

The power distribution unit in each rack then supplies power to the base modules contained within that rack. For additional details about the power requirements of these modules, see “SGI 2000-Series Base Module Power and Cooling Requirements” in Chapter 6 and “Onyx2 Deskside System Power and Cooling Requirements” in Chapter 6.

Onyx2 graphics insert modules used in rack Onyx2 systems have their own power cable which connects directly to a 30-amp receptacle rather than going through the PDU in the rack.

The rack PDUs are illustrated and described in “Power Cables and Connectors” in Appendix B.

SGI 2000-Series Rack Chassis Site Requirements

For information about selecting a physical location for an SGI 2000-series rack system, see “Selecting a Location for an SGI 2000-Series, Origin Peripherals, or Onyx2 Rack System”.

SGI 2000-Series Rack Chassis Specifications

Table 8-1 lists the physical specifications of the SGI 2000-series rack chassis.

Table 8-1. SGI 2000-Series Rack Physical Specifications

Dimensions

 

 

Installed:

length
width
height

38.5” (97.8 cm)
28” (71.1 cm)
73” (185 cm)

Shipping:

length
width
height

48.6” (124 cm)
47.6” (121 cm)
81” (206 cm)

Weight:

minimum (empty rack)
maximum (full rack)
shipping (maximum)

300 lbs (136 kg)
750 lbs (340 kg)
900 lbs (408 kg)

Floor Loading:

minimum
maximum

38 lb/ft2 (185 kg/m2)
95 lb/ft2 (466 kg/m2)

Air Temperature

 

 

Operating:

0-5,000 ft
5,000-10,000 ft

41° to 95° F (5° to 35° C)
41° to 86° F (5° to 30° C)

Non-Operating:

 

-4° to 140° F (-20° to 60° C)

Thermal Gradient:

maximum

18° F (10° C) per hour

Altitude:

operating
non-operating

10,000 ft (3,048 m) MSL (maximum)
40,000 ft (12,192 m) MSL (maximum)

Relative Humidity:

operating
non-operating

10-90% (non-condensing)
10-95% (non-condensing)

Humidity Gradient

maximum

10% relative humidity per hour

Acoustics:

typical

55 dBa

Vibration:

maximum, sustained
maximum, peak
sensitive frequency

0.01”, 5-10 Hz; 0.1 G 10-500 Hz (operating)
0.02”, 5-10 Hz; 0.1 G 10-500 Hz (operating)
8-33 Hz (varies with configuration)


SGI 2000-Series Rack Chassis Power and Cooling Requirements

Table 8-2 provides power consumption and cooling requirements for the SGI 2000-series rack chassis. For formulas, descriptions, and general information about power and cooling, refer to “ Electrical Requirements” in Chapter 2 and “ Thermal Requirements” in Chapter 2.

The SGI 2000-series rack chassis are highly configurable systems, and it is not possible to list the power and cooling requirements for each configuration. For this reason Table 8-2 lists both typical and maximum figures. Note that some systems will draw even less than the “typical” figures listed.

The recommended method of determining power and cooling needs for an SGI 2000-series rack is to use the power and cooling information in “ Electrical Requirements” in Chapter 2 and “ Thermal Requirements” in Chapter 2, along with the specific information in the following sections:

Then calculate the system's requirements.


Caution: SGI 2000-series rack systems are highly configurable, and therefore have an extremely wide range of power and cooling requirements. It is very rare for an SGI 2000-series rack system to reach the “maximum” power and cooling requirements listed in Table 8-2. Ask your SGI representative about particular configurations.


Table 8-2. SGI 2000-Series Rack Power and Cooling Specifications

Volts:

 

200-240 volts AC, 1-phase

Watts (from-the-wall):

typical
maximum

1,900 watts
4,000 watts (see “Caution,” above)

Power Factor:

minimum

0.98

Total Harmonic Dist.:

 

Varies with configuration

Inrush Current:

peak

420 amps

Frequency:

 

47-63 Hertz

Cooling Requirements:
(Also see “Caution” in
“Calculating Thermal Load” in Chapter 2)

typical
maximum

6,479 Btu/hr (0.54-ton AC load)
13,640 Btu/hr (1.14-ton AC load) (see “Caution,” above)

Airflow Volume:

maximum

800 cfm (0.38 m3/s)

See “SGI 2000-Series, Origin Peripherals, and Onyx2 Rack Chassis Internal Wiring” for information about the internal wiring for an SGI 2000-series rack.

See Appendix B, “Site Power and Power Cables”, for information about SGI 2000-series site-wiring and power cables.

SGI 2000-Series Rack Chassis External Peripherals

SGI 2000-series rack system have the same external peripheral requirements as the SGI 2000-series and Origin Vault base modules from which they are assembled. See “SGI 2000-Series Base Module External Peripherals” in Chapter 6 and “Origin200 External Peripherals” in Chapter 5 for more information.

SGI 2000-Series Rack Chassis Cabling Requirements

Besides power cables and external SCSI peripherals, SGI 2000-series rack systems are typically connected to network cables, serial devices, and so on. For details of the ports found on an SGI 2000-series rack system, see the Origin2000 Rackmount Owner's Guide.

In addition, SGI 2000-series rack chassis with more than one base module contain CrayLink connections.

Origin Peripherals Rack Chassis Site Requirements

For information about selecting a physical location for an Origin Peripherals rack chassis, see “Selecting a Location for an SGI 2000-Series, Origin Peripherals, or Onyx2 Rack System”.

Origin Peripherals Rack Chassis Specifications

Table 8-3 lists the physical specifications of the Origin Peripherals rack chassis.

Table 8-3. Origin Peripherals Rack Physical Specifications

Dimensions

 

 

Installed:

length
width
height

38.5” (97.8 cm)
28” (71.1 cm)
73” (185 cm)

Shipping:

length
width
height

48.6” (124 cm)
47.6” (121 cm)
81” (206 cm)

Weight:

minimum (empty rack)
maximum (full rack)
shipping (maximum)

300 lbs (136 kg)
750 lbs (340 kg)
900 lbs (408 kg)

Floor Loading:

minimum
maximum

38 lb/ft2 (185 kg/m2)
95 lb/ft2 (466 kg/m2)

Air Temperature

 

 

Operating:

0-5,000 ft
5,000-10,000 ft

41° to 95° F (5° to 35° C)
41° to 86° F (5° to 30° C)

Non-Operating:

 

-4° to 140° F (-20° to 60° C)

Thermal Gradient:

maximum

18° F (10° C) per hour

Altitude:

operating
non-operating

10,000 ft (3,048 m) MSL (maximum)
40,000 ft (12,192 m) MSL (maximum)

Relative Humidity:

operating
non-operating

10-90% (non-condensing)
10-95% (non-condensing)

Humidity Gradient

maximum

10% relative humidity per hour

Acoustics:

typical

55 dBa

Vibration:

maximum, sustained
maximum, peak
sensitive frequency

0.01”, 5-10 Hz; 0.1 G 10-500 Hz (operating)
0.02”, 5-10 Hz; 0.1 G 10-500 Hz (operating)
8-33 Hz (varies with configuration)


Origin Peripherals Rack Chassis Power and Cooling Requirements

Table 8-4 provides power consumption and cooling requirements for the Origin Peripherals rack chassis. For formulas, descriptions, and general information about power and cooling, refer to “ Electrical Requirements” in Chapter 2 and “ Thermal Requirements” in Chapter 2.

The Origin Peripherals rack chassis are highly configurable systems, and it is not possible to list the power requirements for each configuration. For this reason Table 8-2 lists only maximum figures.

The recommended method of determining power and cooling needs for an Origin Peripherals rack is to use the power and cooling information in “ Electrical Requirements” in Chapter 2 and “ Thermal Requirements” in Chapter 2, along with the specific information in the following sections:

Then calculate the system's requirements.


Caution: Origin Peripherals rack chassis are highly configurable, and therefore have an extremely wide range of power and cooling requirements. It is very rare for an Origin Peripherals rack chassis to reach the power and cooling requirements listed under “maximum” in Table 8-4. SGI strongly recommends that you calculate the power requirements for your particular system, as described above. You may also ask your SGI representative about particular configurations.


Table 8-4. Origin Peripherals Rack Power and Cooling Specifications

Volts:

 

200-240 volts AC, 1-phase

Watts (from-the-wall):

typical
maximum

Depends on configuration
5,400 watts maximum (see “Caution,” above)

Power Factor:

minimum

0.98

Total Harmonic Dist.:

 

Varies with configuration

Inrush Current:

 

Varies with configuration, but can reach 1260 amps peak (see “Caution,” above)

Frequency:

 

47-63 Hertz

Cooling Requirements:
(Also see “Caution” in
“Calculating Thermal Load” in Chapter 2)

typical
maximum

Depends on configuration
18,414 Btu/hr (1.53-ton AC load) (see “Caution,” above)

Airflow Volume:

maximum

900 cfm (0.42 m3/s)

See “SGI 2000-Series, Origin Peripherals, and Onyx2 Rack Chassis Internal Wiring” for information about the internal wiring for an Origin Peripherals rack.

See Appendix B, “Site Power and Power Cables”, for information about Origin Peripherals rack site-wiring and power cables.

Origin Peripherals Rack Chassis External Peripherals

Origin Peripherals rack system have the same external peripheral requirements as the Origin200 modules from which they are assembled. See “Origin200 External Peripherals” in Chapter 5 for more information.

Origin Peripherals Rack Chassis Cabling Requirements

Besides power cables and external SCSI peripherals, Origin Peripheral rack chassis containing Origin200 systems are typically connected to network cables, serial and parallel devices, and so on. For more information, see “Origin200 Cabling Issues” in Chapter 5.

In addition, Origin Peripheral rack chassis containing Origin200 systems may contain CrayLink connections. For more information, see “Origin200 Cabling Issues” in Chapter 5.

Besides power cables, Origin Peripheral rack chassis containing Origin Vault units will typically be connected via SCSI cables to one or more nearby computer systems. For more information, see “Origin Vault SCSI-Cable Considerations” in Chapter 5.

Onyx2 Rack Chassis Site Requirements

For information about selecting a physical location for a SIlicon Graphics Onyx2 rack system, see “Selecting a Location for an SGI 2000-Series, Origin Peripherals, or Onyx2 Rack System”.

Onyx2 Rack Chassis Specifications

Table 8-5 lists the physical specifications of the Silicon Graphics Onyx2 rack chassis.

Table 8-5. Onyx2 Rack Physical Specifications

Dimensions

 

 

Installed:

length
width
height

38.5” (97.8 cm)
28” (71.1 cm)
73” (185 cm)

Shipping:

length
width
height

48.6” (124 cm)
47.6” (121 cm)
81” (206 cm)

Weight:

minimum (empty rack)
maximum (full rack)
shipping (maximum)

300 lbs (136 kg)
750 lbs (340 kg)
900 lbs (408 kg)

Floor Loading:

minimum
maximum

38 lb/ft2 (185 kg/m2)
95 lb/ft2 (466 kg/m2)

Air Temperature

 

 

Operating:

0-5,000 ft
5,000-10,000 ft

41° to 95° F (5° to 35° C)
41° to 86° F (5° to 30° C)

Non-Operating:

 

-4° to 140° F (-20° to 60° C)

Thermal Gradient:

maximum

18° F (10° C) per hour

Altitude:

operating
non-operating

10,000 ft (3,048 m) MSL (maximum)
40,000 ft (12,192 m) MSL (maximum)

Relative Humidity:

operating
non-operating

10-90% (non-condensing)
10-95% (non-condensing)

Humidity Gradient:

maximum

10% relative humidity per hour

Acoustics:

typical

55 dBa

Vibration:

maximum, sustained
maximum, peak
sensitive frequency

0.01”, 5-10 Hz; 0.1 G 10-500 Hz (operating)
0.02”, 5-10 Hz; 0.1 G 10-500 Hz (operating)
8-33 Hz (varies with configuration)


Onyx2 Rack Chassis Power and Cooling Requirements

Table 8-6 provides power consumption and cooling requirements for the Silicon Graphics Onyx2 rack chassis. For formulas, descriptions, and general information about power and cooling, refer to “ Electrical Requirements” in Chapter 2 and “ Thermal Requirements” in Chapter 2.

The Silicon Graphics Onyx2 rack chassis are highly configurable systems, and it is not possible to list the power and cooling requirements for each configuration. For this reason Table 8-6 lists both typical and maximum figures. Note that some systems will draw even less than the “typical” figures listed.

The recommended method of determining power and cooling needs for a Silicon Graphics Onyx2 rack is to use the power and cooling information in “ Electrical Requirements” in Chapter 2 and “ Thermal Requirements” in Chapter 2, along with the specific information in the following sections:

Then calculate the system's requirements.


Caution: Silicon Graphics Onyx2 rack systems are highly configurable, and therefore have an extremely wide range of power and cooling requirements. It is very rare for a Silicon Graphics Onyx2 rack system to reach the power and cooling requirements listed under “maximum” in Table 8-6. Ask your SGI representative about particular configurations.


Table 8-6. Onyx2 Rack Power and Cooling Specifications

Volts:

 

200-240 volts, 1-phase

Watts (from-the-wall):

typical
maximum

2,250 watts
4,300 watts (see “Caution,” above)

Power Factor:

minimum

0.98

Total Harmonic Dist.:

 

Varies with configuration

Inrush Current:

peak

420 amps

Frequency:

 

47-63 Hertz

Cooling Requirements:
(Also see “Caution” in
“Calculating Thermal Load” in Chapter 2)

typical
maximum

7,673 Btu/hr (0.64-ton AC load)
14,663 Btu/hr (1.22-ton AC load) (see “Caution,” above)

Airflow Volume:

maximum

900 cfm (0.42 m3/s)

See “SGI 2000-Series, Origin Peripherals, and Onyx2 Rack Chassis Internal Wiring” for information about the internal wiring for a Silicon Graphics Onyx2 rack.

See Appendix B, “Site Power and Power Cables”, for information about Silicon graphics Onyx2 site-wiring and power cables.

Onyx2 Rack Chassis External Peripherals

Silicon Graphics Onyx2 rack systems have the same external peripheral requirements as Silicon Graphics Onyx2 base modules. See “Onyx2 Deskside System External Peripherals” in Chapter 6 for more information.

Onyx2 Rack Chassis Cabling Requirements

Besides power cables and external SCSI peripherals, Silicon Graphics Onyx2 rack systems are typically connected to network cables, serial and parallel devices, and so on. For details of the ports found on a Silicon Graphics Onyx2 rack system, see the Onyx2 Rackmount Owner's Guide.

In addition, Silicon Graphics Onyx2 rack chassis with more than one base module contain CrayLink connections, and each Silicon Graphics Onyx2 graphics insert module connects to an SGI 2000-series base module with an XTown cable.